Collezioni storiche del Politecnico di Torino

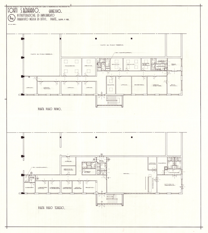
Fonti San Bernardo, Garessio

Unità archivistica
  • Tipologia
    Unità archivistica
  • Descrizione
    Progetto di ampliamento e ristrutturazione dello stabilimento Fonti San Bernardo a Garessio:
    Un faldone di eliocopie datate 1985 - 1988 delle strutture e del progetto di ampliamento dello stabilimento Fonti San Bernardo a Garessio, Cuneo.
    Un faldone di corrispondenza e documentazione datata 1985 - 1992 per il progetto di ampliamento dello stabilimento Fonti San Bernardo a Garessio, Cuneo. Catalogo dell’ Agrogreen s.r.l., eliocopie del piccolo ampliamento per protezione Silos bottiglie P.V.C., rilievi dell'Impresa Garessio s.a.s., e eliocopie dei calcoli strutturali.
    Un faldone di corrispondenza e documentazione del 1987 c. delle diverse imprese di costruzioni; preventivo incendi e descrizione dei lavori eseguiti dalle imprese; cataloghi delle coperture tetto, pavimentazione e superfici.
    Un faldone di documentazione e capitolato descrittivo del progetto del 1991 per la ristrutturazione e l'ampliamento uffici e mensa nello stabilimento Fonti San Bernardo a Garessio, eliocopie del progetto e delle strutture in c.a.
    Un faldone di documentazione delle indagini diagnostiche e relazione geotecnica del territorio, eliocopie dei calcoli in cemento armato delle imprese costruttrici e dettagli costruttivi forniti dall'Impresa Recchi nel 1988.
    Un faldone di eliocopie dei rilievi e dei calcoli strutturali forniti dall'impresa PRE-SAL S.p.A., relazione di calcolo del 1987, catalogo della ditta e corrispondenza per l'ampliamento protezione Silos bottiglie P.V.C.
    Un faldone di documentazione sulla contabilità per il progetto di ampliamento e ristrutturazione dello stabilimento Fonti San Bernardo a Garessio e rilievi della planimetria.
    Un faldone di rivalutazione perizia dell'immobile di proprietà delle Fonti San Bernardo a Garessio e corrispondenza datata 1979 - 1981 c.
    Un faldone di documentazione, relazione tecnica descrittiva, eliocopie e relazione calcolo per il progetto di ampliamento alla palazzina uffici fronte nord-est dello stabilimento Fonti San Bernardo a Garessio.
    Un album di stampe fotografiche a colori del cantiere dello stabilimento Fonti San Bernardo a Garessio durante la fase di ampliamento del frontone.
    Un rotolo di tavole disegnate a china e matita su carta da lucido e radex dei progetti per l’ampliamento e la ristrutturazione della struttura Fonti San Bernardo a Garessio.




  • Consistenza
    -